En navigant dans ce site vous acceptez implicitement les cookies qui permettent une meilleure utilisation de ce site.
Vous ne verrez ce message qu'une fois.


Accepter les cookies

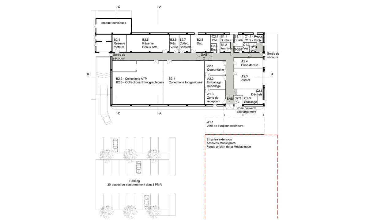
Centre de conservation pour le Musée régional d'Archéologie et du vin de Champagne
Maître d'ouvrage | Ville d'Epernay
Localisation | Epernay
Etude | 2017

Surface | 1114 m2
Montant des travaux | 1,80 M€ HT
© Levy
fleche
projet 26 / 26
fleche
CULTURE / PATRIMOINE
bouton hertzel

en savoir plus

Réalisation d’une salle polyvalente dans un ancien atelier garage de la Caserne Hetzel
bouton montlucon

en savoir plus

Création du Centre de conservation des collections muséographiques du service des Musées de la Ville de Montluçon
reserves musée de Beziers

en savoir plus

Réalisation des réserves muséales de la Ville de Béziers
Projet ADV

en savoir plus

Construction du pole de recherche et de conservation du patrimoine vauclusien – Avignon
Projet Tahiti

en savoir plus

Musée de Tahiti et des Iles
Projet Tonga

en savoir plus

Musée national de Tonga
ProjetMusique Martigues

en savoir plus

École de musique de Martigues
Projet RC Nancy

en savoir plus

Réserves communes aux Musées de la ville de Nancy et du Grand Nancy
Projet Réserves Bayonne

en savoir plus

Réserves des Musées de la Ville de Bayonne
2011CERCOArles

en savoir plus

Cerco – Réserves du Musée Arlaten
2001 MuséeMarseille

en savoir plus

Réserves des musées de Marseille
2001 MuséeMarseille

en savoir plus

CICRP - Centre Interrégional de Conservation et de Restauration du Patrimoine
1992 MAAOA Amérindiens

en savoir plus

MAAOA Musée des Arts Africains Océaniens et Amérindiens - Vieille Charité
1992 MAAOA Reichenbach

en savoir plus

MAAOA - Exposition Biery Fang dans la chapelle de la Vieille Charité
1992 MAAOA VieilleCharité

en savoir plus

MAAOA - Salle Reichenbach - Vieille Charité
1991 OCID

en savoir plus

OCID Office Départemental de la Communication et de l'Information
Projet Chambery

en savoir plus

Centre de Conservation des Collections Départementales de Savoie
Projet Cloitre Puy en velay

en savoir plus

Réserve cloître de la cathédrale du Puy-en-Velay
Projet Danse Martigues

en savoir plus

École de danse de Martigues
Projet Docks des Suds

en savoir plus

Salles de concerts et évènementiel Dock-des-Sud
Projet Dugny

en savoir plus

Réserves du Musée National de la Marine à Paris
Projet Espace St Jean

en savoir plus

Aménagement de l'espace St Jean - J4
ProjetMuséePicasso

en savoir plus

Centre de recherche et de documentation - Atelier de conservation préventive
Projet Réserves Poitiers

en savoir plus

Construction des Réserves des Musées de la Ville de Poitiers
Projet st malo

en savoir plus

Réserves externalisées du Musée d’Histoire Maritime
Centre epernay

en savoir plus

Centre de conservation pour le Musée régional d'Archéologie et du vin de Champagne