En navigant dans ce site vous acceptez implicitement les cookies qui permettent une meilleure utilisation de ce site.
Vous ne verrez ce message qu'une fois.


Accepter les cookies

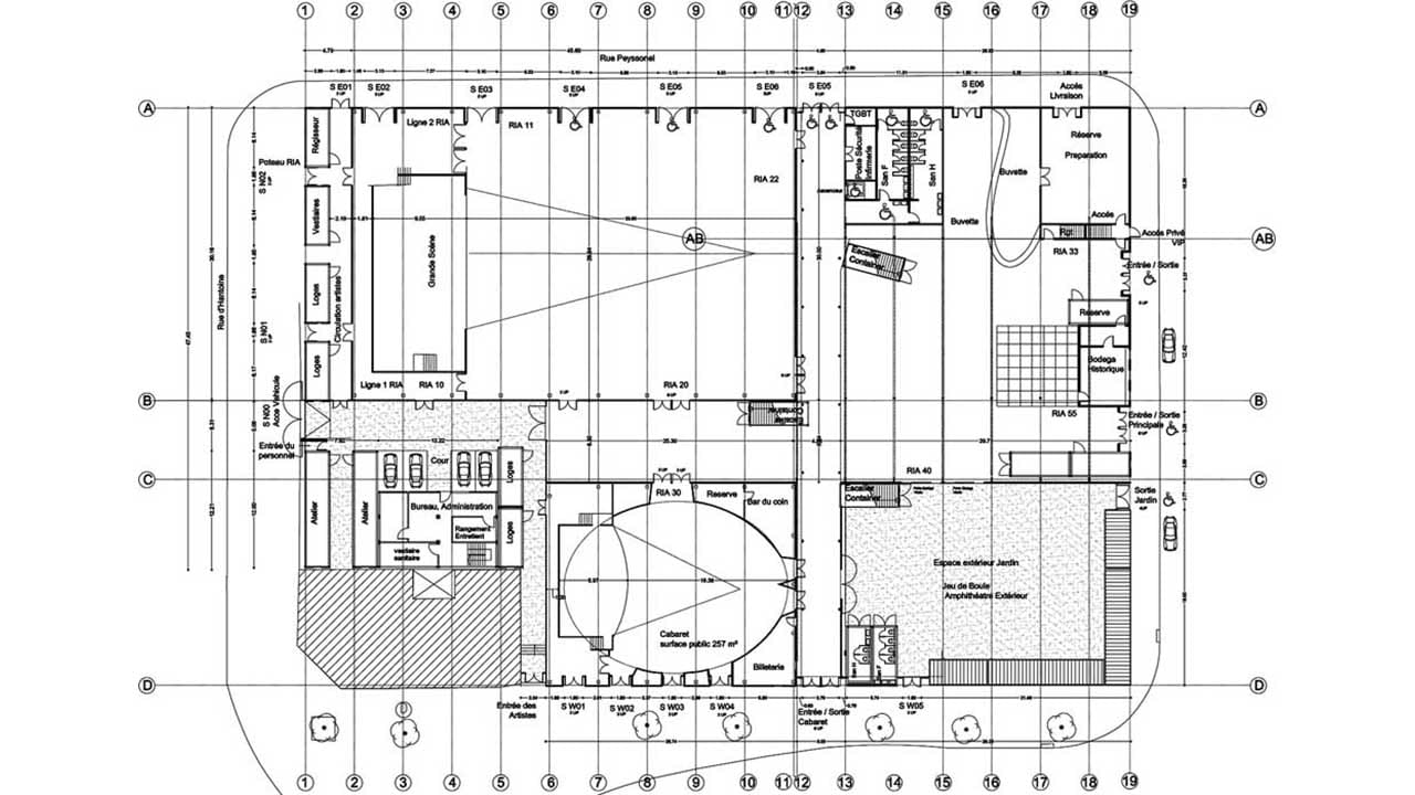
Salles de concerts et évènementiel Dock-des-Sud
Maitre d'ouvrage | Docks des Suds
Localisation | Marseille
Date | 2006

Surface | 6500m2
Montant des travaux | 3,5 M€
© Levy & Magnan
fleche
projet : 19 / 21
fleche
RÉHABILITATION / EXTENSION
bouton-Kerat

en savoir plus

Extension du bâtiment industriel Kerat’Innov - Zac Athelia lV - La Ciotat (13)
bouton-dassault

en savoir plus

Réhabilitation et réaménagement du bâtiment HM2 - Base aérienne BA125 - Istres (13)
Bouton Hertzel

En savoir plus

Réalisation d’une salle polyvalente dans un ancien atelier garage de la Caserne Hetzel
2015 Esid Célibataires

en savoir plus

Construction installation technique accueil vehicules blindes scorpion
2015 Esid Célibataires

en savoir plus

Bâtiments d’hébergement des Cadres Célibataires
2014 La Ciotat AnnexeA

en savoir plus

Bâtiment annexe Nef A - ateliers et bureaux - La Ciotat
2011CERCOArles

en savoir plus

Cerco – Réserves du Musée Arlaten
2001 MuséeMarseille

en savoir plus

Réserves des musées de Marseille
2001 MuséeMarseille

en savoir plus

CICRP - Centre Interrégional de Conservation et de Restauration du Patrimoine
1998 Avenir Telecom

en savoir plus

Siège avenir Télécom - Rizeries franco-indochinoise
1992 MAAOA VieilleCharité

en savoir plus

MAAOA - Salle Reichenbach - Vieille Charité
1992 MAAOA Amérindiens

en savoir plus

MAAOA Musée des Arts Africains Océaniens et Amérindiens - Vieille Charité
1992 MAAOA Reichenbach

en savoir plus

MAAOA - Exposition Biery Fang dans la chapelle de la Vieille Charité
1991 OCID

en savoir plus

OCID Office Départemental de la Communication et de l'Information
Projet Cloitre Puy en velay

en savoir plus

Réserve cloître de la cathédrale du Puy-en-Velay
Projet Danse Martigues

en savoir plus

École de danse de Martigues
ProjetMusique Martigues

en savoir plus

École de musique de Martigues
ProjetMuséePicasso

en savoir plus

Centre de recherche et de documentation - Atelier de conservation préventive
Projet Docks des Suds

en savoir plus

Salles de concerts et évènementiel Dock-des-Sud
Projet Internat Remparts

en savoir plus

Internat du Lycée du Rempart - Marseille
Projet Internat Remparts

en savoir plus

Internat du Lycée Thiers - Marseille